DRUŽSTEVNÍ BYT 3+1 (71 m2 včetně sklepa a lodžie) V KLIDNÉ LOKALITĚ VYSOKÉHO MÝTA, V ULICI U POTOKA
Představujeme příjemný a prostorný byt 3+1 (71 m² včetně sklepa a lodžie) k prodeji v klidné lokalitě Vysokého Mýta, v ulici U Potoka. Byt má příjemnou dispozici a nabízí komfortní životní prostor pro rodinu i investici do budoucna.
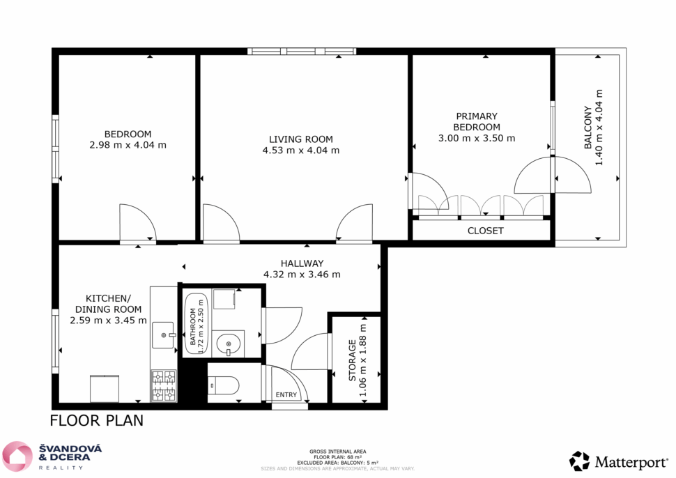
Dispozice a vybavení
Byt se nachází v původním, pečlivě udržovaném stavu, což dává novému majiteli možnost upravit si interiér podle vlastních představ, avšak prodává se včetně vybavení, takže je možné nastěhovat se prakticky okamžitě.
Přesné výměry jednotlivých místností:
Kuchyně: 10,5 m²
Pokoj 1: 12,0 m²
Pokoj 2: 18,0 m²
Pokoj 3: 11,7 m²
Předsíň: 6,45 m²
Šatna: 1,9 m²
Koupelna: 2,7 m²
WC: 1,05 m²
Sklep: 1,9 m²
Lodžie: 4,45 m² — nabízí příjemný výhled do zeleně
Lodžie je skvělým místem pro relaxaci s výhledem do okolní zeleně, ideální pro posezení s šálkem kávy nebo čtení.
Financování a právní stav
Byt je družstevní, avšak anuita je již splacena, což umožňuje okamžitý převod do osobního vlastnictví (OV).
Lokalita a vybavenost
Nemovitost se nachází v klidné, příjemné části města, přitom s výbornou dostupností ke všem důležitým bodům.
Pár kroků od bytu se nachází školy, školky a ZUŠ — ideální pro rodiny s dětmi.
Nedaleko je nákupní centrum Tesco, což zaručuje pohodlný přístup k dennímu pohodlí.
Centrum města je snadno dosažitelné i pěšky.
Okolí nabídne klidné prostředí, stromy, zeleň a přirozené bariéry vůči ruchu silnic.
Pro koho je tento byt vhodný
Pro rodinu, která chce komfortní bydlení v klidné, ale dobře dostupné části města
Pro investora, který hledá ihned pronajímatelnou nemovitost — byt je vybavený a připravený k nastěhování
Pro každého, kdo ocení možnost okamžitého převodu do OV a vlastní úpravy bytu podle svých představ
Cena bytu: 3.700.000 Kč
V případě více zájemců si majitel vyhrazuje právo zvolit nejvýhodnější nabídku.
Vysoké Mýto - Město s historickým šarmem a moderním životem
Vysoké Mýto je živé a atraktivní město, které nabízí ideální podmínky pro pohodlné bydlení i aktivní život. Leží v Pardubickém kraji, v okrese Ústí nad Orlicí, a díky své poloze a vybavenosti se stává čím dál oblíbenějším místem k životu.
Dominantou města je jedno z největších čtvercových náměstí v České republice, obklopené krásně udržovanými historickými budovami, kavárnami a obchody. Vysoké Mýto má bohatou historii sahající až do 13. století, ale současně tu najdete vše, co potřebujete pro moderní a pohodlný život.
Město disponuje kompletní občanskou vybaveností – školkami, školami, sportovními areály, zdravotnickými zařízeními, supermarketem, kulturním domem i městským muzeem. Nechybí ani aquapark, sportovní hala, zimní stadion nebo rozsáhlá síť cyklostezek v okolní přírodě.
Významnou výhodou Vysokého Mýta je jeho dopravní dostupnost. Nachází se na trase mezi Hradcem Králové a Brnem, s přímým napojením na hlavní silniční tahy. Město má rovněž velmi dobrou autobusovou i vlakovou obslužnost, což ocení každý, kdo dojíždí za prací nebo školou.
Vysoké Mýto také žije kulturou a komunitním životem – pravidelně se zde konají koncerty, festivaly, trhy a různé sportovní či společenské akce. Místní atmosféra je přátelská, bezpečná a vhodná jak pro rodiny s dětmi, tak pro mladé páry i seniory.
Bydlení ve Vysokém Mýtě je skvělou volbou pro každého, kdo chce spojit klid menšího města s kvalitní infrastrukturou a aktivním způsobem života. Tento byt je nejen pohodlným domovem, ale také výbornou investicí do budoucna.


FINANCOVÁNÍ
Chcete si být jistí, že na tento byt ve Vysokém Mýtě získáte výhodné financování?
Náš kolega Petr Mandlík Vám možnosti financování srozumitelně vysvětlí a zajistí Vám tu nejlepší a nejvýhodnější variantu pro Vás. A hlavně Vás celým procesem provede doslova "za ručičku", nikdy se Vám nestane, že by Vás předal do vytypované banky a Vy si pak museli vše "oběhat" a zařídit sami. Naopak, vše co je v jeho silách zařídí za Vás, všude Vás bude doprovázet a bude Vám vždy k dispozici. Od první schůzky až po podpisy smluv, katastr a čerpání peněz. PROSTĚ S PETREM NA TO NEBUDETE NIKDY SAMI.
KONTAKT

Zita Švandová
majitelka realitní kanceláře

Švandová & dcera reality
Zita Švandová
608 780 844
zita@reality-svandova.cz
Aneta Ježková
739 290 799
aneta@reality-svandova.cz













































